Tuinhuis M309 – 200 x 200 cm – 4 m2
Compact houten tuinhuis – multifunctionele berging voor elke tuin
Een houten tuinhuis is de ideale oplossing voor wie extra opbergruimte zoekt zonder veel plaats in te nemen.
Dankzij het compacte formaat past dit tuinhuis perfect in kleine tuinen, tegen een muur of naast een afsluiting.
Het biedt een praktische en nette opslagplek voor al je belangrijke tuinspullen – van fietsen en gereedschap tot klein tuinmateriaal en kinderspeelgoed.
Zo blijft je tuin altijd ordelijk en georganiseerd.
Stevig houten tuinhuis met duurzaam ontwerp
De structuur van dit houten tuinhuis is gebaseerd op het planken-inkliksysteem, waarbij de wanden in elkaar grijpen.
Deze constructiemethode vraagt iets meer tijd bij montage, maar zorgt voor een sterkere en duurzamere opbouw.
De montage is eenvoudig en aangenaam – een echt plezier voor elke doe-het-zelver.
Dankzij de brede deur kun je gemakkelijk grotere voorwerpen zoals fietsen, tuintafels of gereedschap naar binnen brengen.
De plexiglazen ramen laten voldoende daglicht binnen, waardoor de binnenruimte licht en uitnodigend aanvoelt.
Alle houten onderdelen worden geleverd in hun natuurlijke, onbehandelde staat en moeten vóór montage worden behandeld met een houtbeschermingsmiddel.
Zo blijft je tuinhuis jarenlang stevig, weerbestendig en mooi van kleur.
💡 Compact, stevig en stijlvol – dit houten tuinhuis combineert functionaliteit met natuurlijke charme en past perfect in elke tuinomgeving.rage past perfect in elke buitenomgeving. Zo geniet je elke dag van orde, ruimte en authentieke houtbouw.
📦 Wat zit er in het pakket? – Houten tuinhuis / tuinberging
- Wandpanelen: 19 mm dikke massieve houten planken – duurzaam, stevig en eenvoudig te monteren.
- Dakpanelen: Waterdichte OSB-3 platen (12 mm) zorgen voor een stabiel en vochtbestendig dak.
- Dakbedekking: Grijze bitumen daklaag – biedt langdurige bescherming tegen regen en sneeuw.
- Deuren: Dubbele houten deuren met geïntegreerde plexiglazen ramen voor natuurlijke lichtinval.
- Deurgrendel: Sterke sluiting met grendel voor veilige afsluiting.
- Montageset: Inclusief houtschroeven, scharnieren en bevestigingsmateriaal.
- Handleiding: Duidelijke montage-instructies voor eenvoudige zelfmontage.
- Optioneel: Leverbaar met of zonder vloer, afhankelijk van jouw voorkeur of ondergrond.
💡 Dit complete houten tuinhuis wordt geleverd als gebruiksvriendelijk bouwpakket – alles wat je nodig hebt om in een handomdraai een stevige en stijlvolle tuinberging te creëren.
⚙️ Technische specificaties – Houten tuinhuis / tuinberging
| Kenmerk | Specificatie |
|---|---|
| Totale oppervlakte | 3,53 m² |
| Hoogte | 200 cm |
| Breedte | 200 cm |
| Lengte | 200 cm |
| Wanddikte | 19 mm |
| Materiaal | Noord-Europees dennen- / vurenhout van hoge kwaliteit |
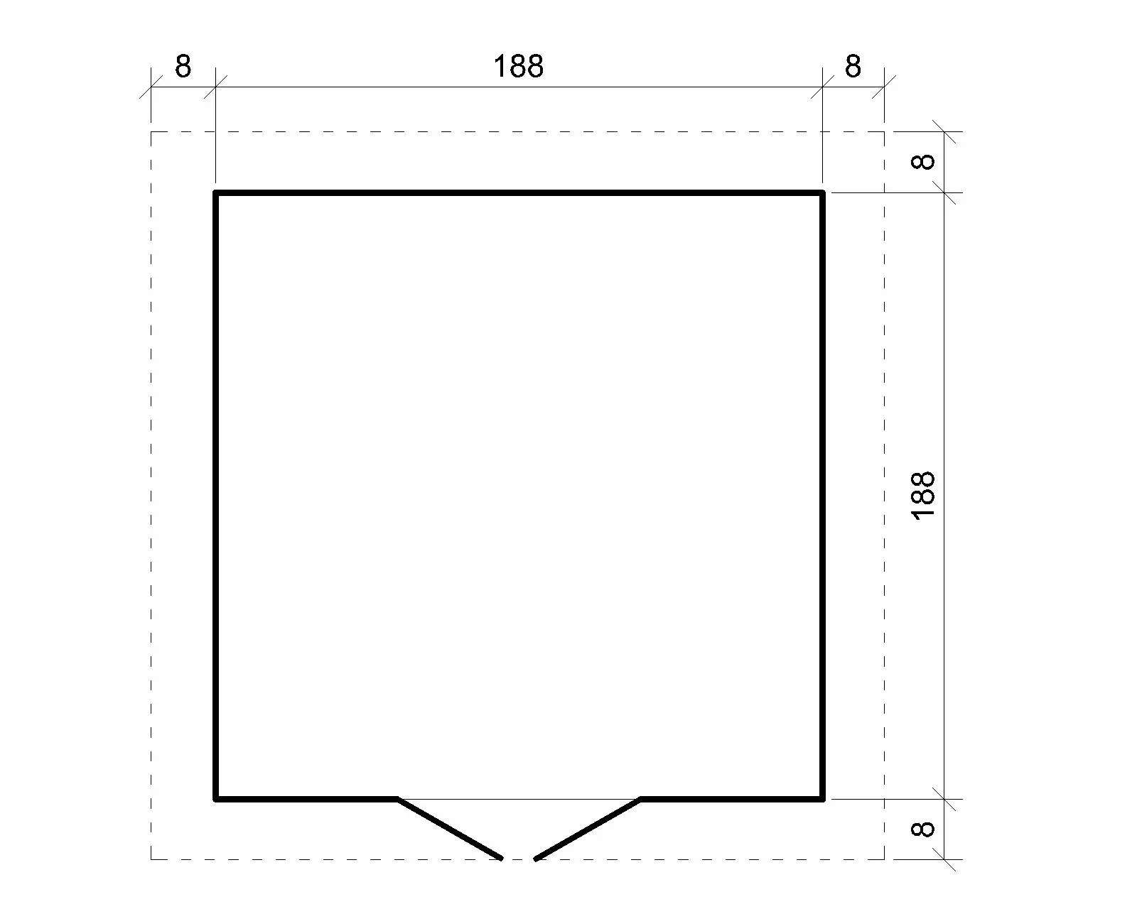
| Binnenafmetingen | 188 × 188 cm |
| Dakconstructie | OSB-3 dakplaten (12 mm) met grijze bitumen dakbedekking |
| Dakbelasting | 30 kg/m² |
| Raamafmetingen | 30 × 30 cm |
| Raammateriaal | Plexiglas – lichtdoorlatend en slagvast |
| Deurafmetingen | 117 × 176 cm |
| Deurkenmerken | Deur met grendel voor veilige afsluiting |
| Vloer | Geïmpregneerde houten vloerplanken (19 mm dik) |
| Vloeropties | Verkrijgbaar met of zonder vloer, afhankelijk van jouw voorkeur |
| Verpakkingsafmetingen | 52 x 80 x 205 cm |
| Totaal gewicht | 230 kg |
🌿 Eigenschappen van natuurlijk hout
Onze houten tuinhuizen worden vervaardigd uit hoogwaardig, FSC® C110730-gecertificeerd gedroogd en geschaafd dennen- en vurenhout.
Dit kwaliteitsvolle hout is licht van kleur, heeft een glad oppervlak en slechts fijne, subtiele noesten.
Omdat hout een natuurlijk materiaal is, kan het zich gedragen volgens de weersomstandigheden — en dat maakt elk gebouw uniek.
Natuurlijk karakter en werking van het hout
Kleine barstjes, scheurtjes of kleurverschillen zijn geen fouten, maar natuurlijke eigenschappen van massief hout.
Ook kleine openingen tussen de planken kunnen tijdelijk ontstaan door uitzetting of krimp onder invloed van vocht en temperatuur.
Wanneer het hout correct wordt behandeld en geïmpregneerd, stabiliseert dit proces vanzelf na verloop van tijd.
Natuurlijke toleranties in maatvoering
Door de natuurlijke werking van hout kunnen productafmetingen licht variëren (1–2 mm).
Deze minimale verschillen hebben geen invloed op de stevigheid of duurzaamheid van je houten garage.
Belang van houtbehandeling
Onbehandeld hout kan na verloop van tijd blauwverkleuring of oppervlakkige schimmel vertonen.
Daarom is het essentieel om alle houten onderdelen vóór de montage te behandelen met een kwalitatieve houtimpregneer.
Breng het impregneermiddel aan op alle zijden van de planken, zodat het hout optimaal beschermd is tegen vocht, zon en schimmels.
Natuurlijk kleurverschil
Het is normaal dat er kleine kleurverschillen zijn tussen afzonderlijke planken.
Onder invloed van zonlicht egaliseren deze tinten geleidelijk, zonder enig effect op de stabiliteit of kwaliteit van het product.
💡 Met de juiste behandeling blijft je houten tuinhuis jarenlang stevig, stabiel en natuurlijk mooi — precies zoals hoogwaardig hout bedoeld is.
🧰 Onderhoudsinstructies – Houten tuinhuis
Een goede houtbehandeling is essentieel om de levensduur van je houten tuinhuis te verlengen.
Onbehandeld hout kan na verloop van tijd blauwverkleuring of schimmelvorming vertonen.
Om dit te voorkomen, moeten alle houten onderdelen aan alle zijden behandeld worden met een kwalitatieve houtbescherming vóór de montage van het product.
Behandel het hout enkel wanneer het volledig droog is – het behandelen of schilderen van vochtig hout vergroot het risico op schimmelgroei aanzienlijk.
Wij raden aan om de buitenzijde om de 3 jaar opnieuw te schilderen of te impregneren, of vaker indien nodig, afhankelijk van de weersomstandigheden.
💨 Ventilatie en bescherming tegen vocht
Een goede ventilatie is cruciaal om vochtophoping in het houten tuinhuis te voorkomen.
Zorg ervoor dat de lucht vrij kan circuleren en verlucht regelmatig de binnenruimte, vooral tijdens natte of koude periodes.
Op die manier blijft het hout droog, gezond en stabiel.
🔍 Seizoensgebonden onderhoudscontrole
Om de levensduur van je houten tuinhuis te garanderen, raden we aan om minstens één keer per seizoen een grondige controle uit te voeren:
- Controleer op barstjes of beschadigde houten planken.
- Inspecteer de dakbedekking op scheurtjes, beschadigingen of openingen waar vocht kan binnendringen.
- Let op tekenen van vochtophoping of schimmelvorming binnenin de constructie.
- Verwijder bladeren, vuil of takken rond de basis van het tuinhuis om vochtophoping en houtrot te voorkomen.
💡 Met regelmatig onderhoud, een juiste houtbehandeling en voldoende ventilatie blijft je houten tuinhuis jarenlang stevig, mooi en beschermd tegen weer en wind.
🛠️ Garantievoorwaarden – Houten tuinhuis
Onze houten tuinhuizen worden geleverd met een garantie van 2 jaar, geldig vanaf de factuurdatum.
De garantie is enkel van kracht wanneer het product correct is gemonteerd volgens de bijgeleverde montage-instructies.
De garantie dekt uitsluitend de vervanging van defecte onderdelen.
Voorwaarden voor garantie
Alle houten onderdelen worden geleverd in natuurlijke, onbehandelde staat en moeten behandeld worden volgens de instructies voor houtbescherming.
Om fouten tijdens de montage te vermijden, raden wij aan om binnen 14 dagen na aankoop de inhoud van het pakket te controleren, de onderdelen te sorteren en te vergelijken met de onderdelenlijst in de handleiding.
De garantie is enkel van toepassing op defecte onderdelen die nog niet behandeld of gemonteerd zijn.
Onderdelen die reeds geverfd, geïmpregneerd of gebruikt werden tijdens de montage vallen niet onder de garantie.
Melding van schade of defect
Om gebruik te maken van de garantie, moet de koper de verkoper schriftelijk informeren over eventuele schade of defecten via e-mail.
Gelieve bij de melding de volgende gegevens te voegen:
- Duidelijke foto’s van het beschadigde onderdeel of het defecte product
- Een lijst van de beschadigde of ontbrekende onderdelen
- Het LOT-nummer dat vermeld staat in de montage-instructies
💡 Met de juiste montage en houtbehandeling geniet je jarenlang zorgeloos van je houten tuinhuis – stevig, stijlvol en duurzaam gebouwd om lang mee te gaan.
🚚 Productverpakking en levering – Houten tuinhuis
Onze houten tuinhuizen worden zorgvuldig verpakt op stevige pallets en geleverd met 19-tons vrachtwagens die zijn uitgerust met een hydraulische laadklep.
Het product wordt ongemonteerd geleverd – alle onderdelen zijn netjes gestapeld op een pallet en beschermd met een zwarte folie tegen stof en vocht.
De levering gebeurt zo dicht mogelijk bij de woning.
Indien de vrachtwagen niet op uw oprit of erf kan rijden, wordt de pallet afgeladen op de dichtstbijzijnde bereikbare plaats.
Controleer vóór aankoop of een 19-tons vrachtwagen uw woning of leveradres goed kan bereiken.
📞 Let op: een telefoonnummer is verplicht voor de levering.
Als de koerier de koper niet kan bereiken, kan de levering niet worden uitgevoerd.
Controleer bij ontvangst of de verpakking niet beschadigd is tijdens het transport.
✅ Kwaliteitsvolle verpakking en controle
Elk houten tuinhuis wordt geproduceerd, getest en verpakt volgens strenge kwaliteitsnormen en interne controleprocedures.
Zo ben je zeker van een compleet en onbeschadigd pakket, klaar voor montage.
📦 Aanbevolen opslag vóór montage
- Bewaar de verpakte onderdelen in een droge, schaduwrijke ruimte, uit de zon en beschermd tegen vocht.
- Zorg ervoor dat de pallet niet rechtstreeks in contact komt met de grond.
- Vermijd langdurige blootstelling aan zonlicht of regen om kromtrekken of verkleuring te voorkomen.
💡 Met de juiste opslag en voorbereiding verloopt de montage van jouw houten tuinhuis vlot en blijft het hout in perfecte staat tot plaatsing.








Beoordelingen
Er zijn nog geen beoordelingen.